Back

Bishop Alcock Road, Hull

Bishop Alcock Road, Hull, HU5 4RL

£185,000
Back to Search Results

SSTC 3 Bed House - Terraced 

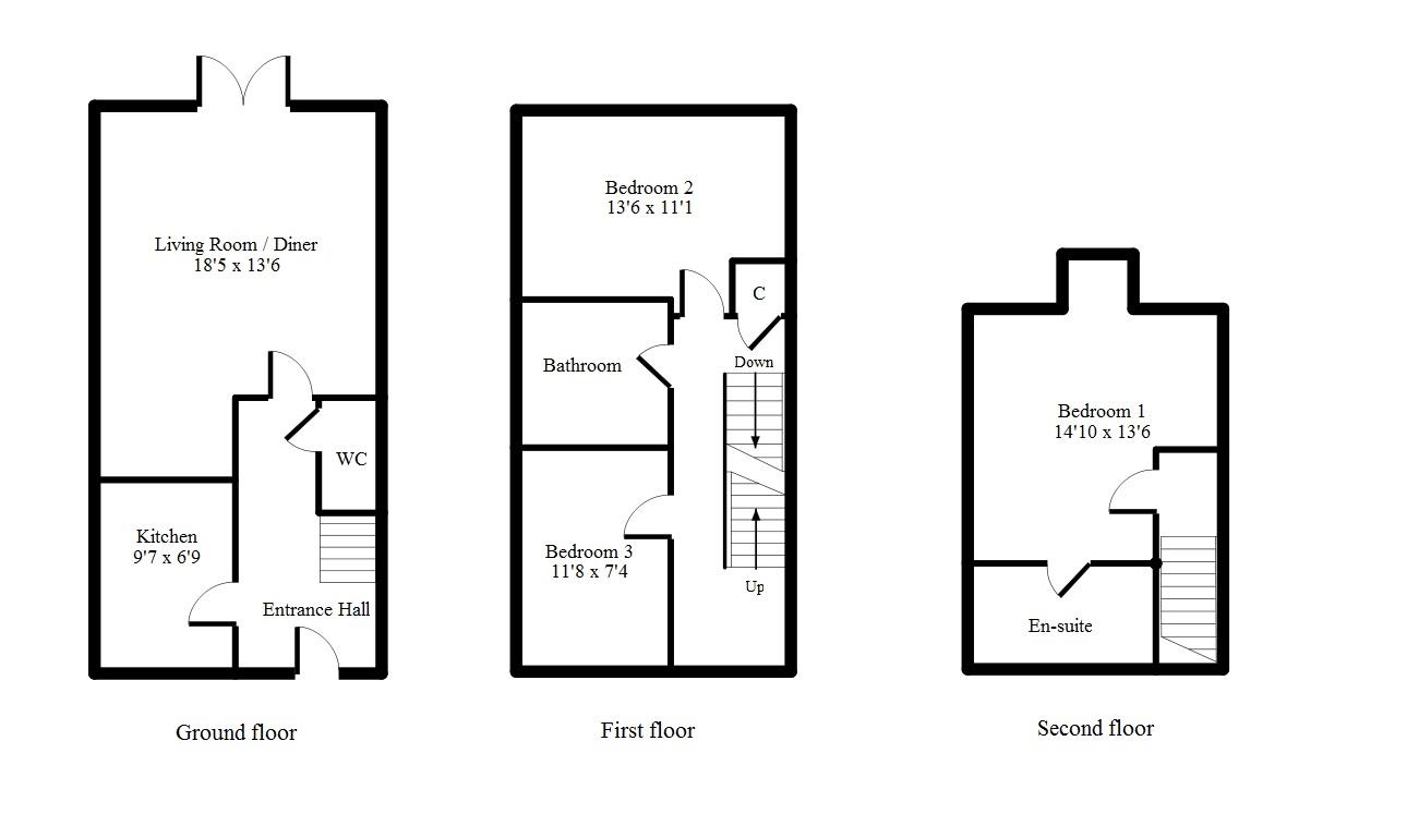
MODERN THREE-BEDROOM TOWNHOUSE – ENSUITE AND FAMILY BATHROOM – 2 OFF STREET PARKING SPACES TO REAR – SOUGHT-AFTER LOCATION – PERFECT FOR FIRST-TIME BUYERS

Tucked away on the ever-popular Bishop Alcock Road, this stylish townhouse delivers the perfect balance of modern comfort, thoughtful design, and everyday practicality.

Spread across three well-proportioned floors, the property boasts three spacious double bedrooms, including a superb master suite with its own private ensuite – ideal for growing families or professionals seeking additional space to work or relax. A sleek family bathroom and a convenient downstairs WC add to the functional layout, while the bright and inviting reception room offers a perfect space to unwind or entertain guests.

Externally, the home benefits from off-street parking to the rear and a low maintenance rear garden ideal for entertaining in summer. Whether you’re a first-time buyer or simply looking for a fresh start in a vibrant, community-focused neighbourhood, this home ticks all the right boxes.

Modern, low-maintenance, and move-in ready – this is more than just a house; it’s the start of your next chapter.

Arrange your viewing today – opportunities like this don’t stay available for long.

Floorplan
EPCs

Central Heating

The property has the benefit of gas central heating (not tested).

Double Glazing

The property has the benefit of double glazing.

Tenure

Symonds + Greenham have been informed that this property is Freehold
If you require more information on the tenure of this property please contact the office on 01482 444200.

Council Tax Band

Symonds + Greenham have been informed that this property is in Council Tax Band C

Viewings

Please contact Symonds + Greenham on 01482 444200 to arrange a viewing on this property.

Disclaimer

Symonds + Greenham do their utmost to ensure all the details advertised are correct however any viewer or potential buyer are advised to conduct their own survey prior to making an offer.

Floorplan
EPCs
Free Instant Valuation